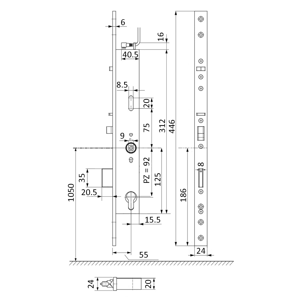
KEL-809NE7-55

Generate Data Sheet

No Related Documents