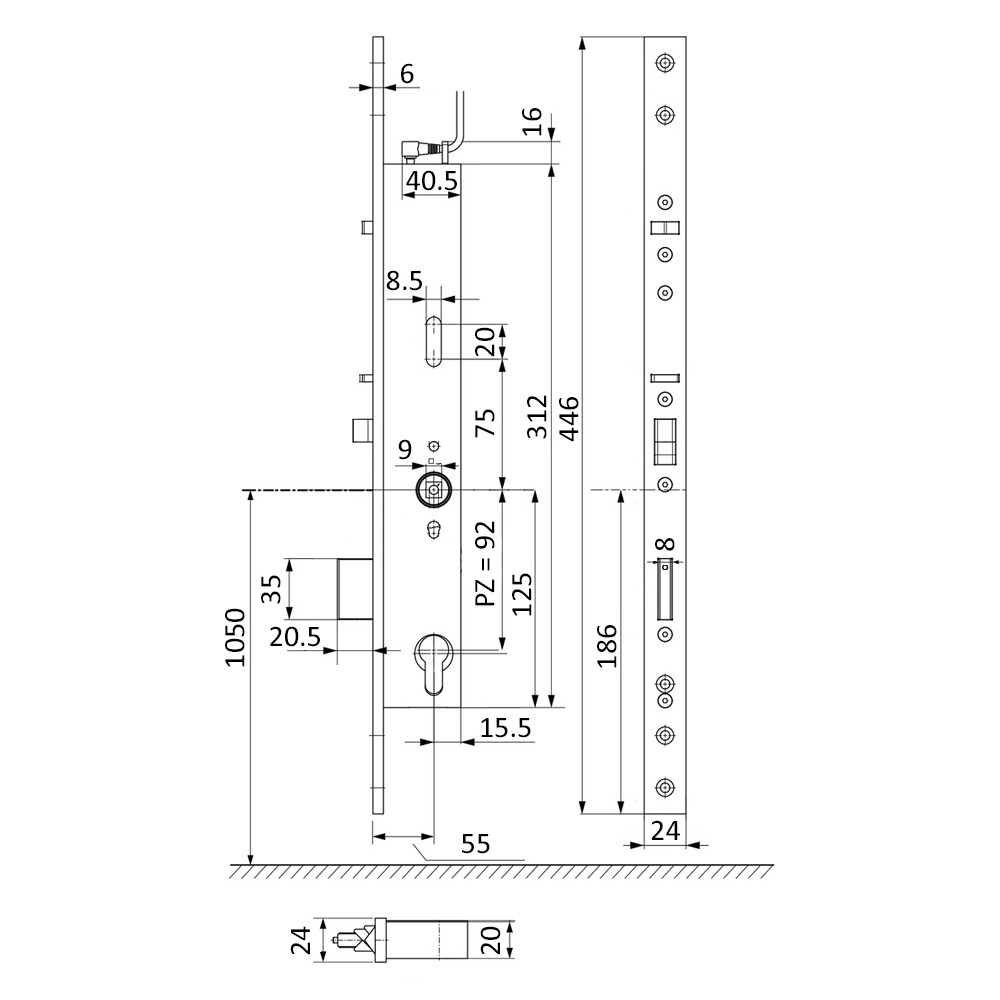
KEL-809NE-55

Generate Data Sheet

No Related Documents